Makléř: Bc. Jaroslav Fišer
Telefon: 608 475 ...
E-mail: fiser@r ...
Zobrazit celý kontaktTelefon: 608 475 705, 608 475 705
E-mail: fiser@reality11.cz
Nemovitost nabízí
REAL ESTATE CZECH REPUBLIC a.s.
Zobrazit kontakt na RK
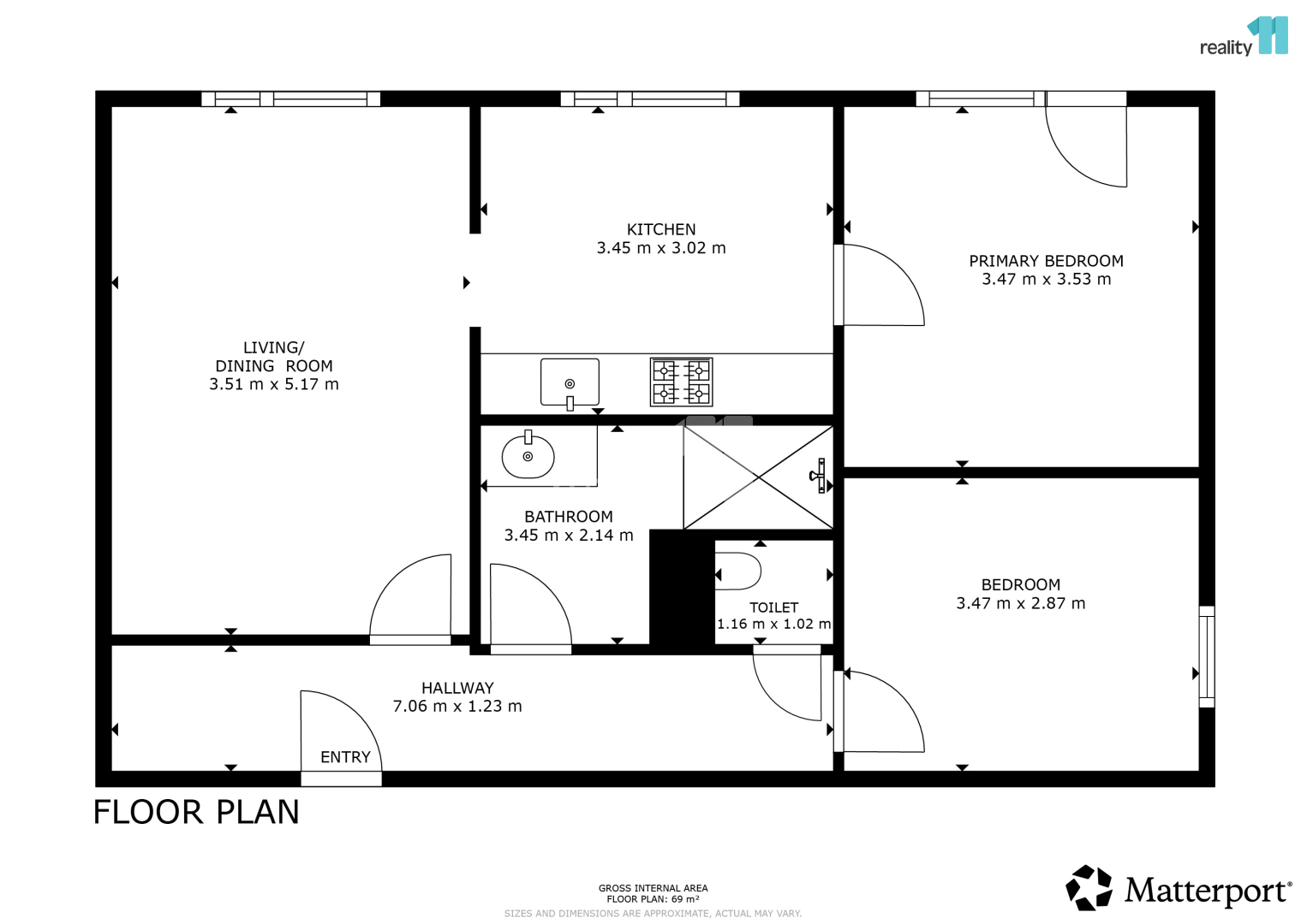
Hledáte byt po kompletní rekonstrukci, kde už stačí jen převzít klíče, nastěhovat se a neřešit žádné další investice? Máme pro vás byt 3+1 ve Světlé nad Sázavou, který se nachází v ulici Na Sídlišti, jen kousek od centra města. Byt nabízí užitnou plochu 67 m2 a bonusem je balkón o velikosti 4 m2, ideální místo pro ranní kávu nebo chvíle odpočinku. Praktickým benefitem je také komora o velikosti 2 m2 umístěná mimo bytovou jednotku, která poskytuje další prostor pro uskladnění věcí. Dispozičně je byt řešen jako 3+1 a nabízí obývací pokoj, ložnici, kuchyni, další pokoj, koupelnu, samostatné WC a prostornou chodbu, která poskytuje dostatek prostoru pro umístění úložných prostor. V rámci rekonstrukce došlo k celkové výměně elektroinstalace a vodovodních rozvodů. Byt má nové omítky a všude byla položena nová podlahová krytina. Díky tomu nabízí bydlení bez nutnosti dalších investic. Velkou výhodou je také samotná lokalita. Ulice Na Sídlišti ve Světlé nad Sázavou patří mezi vyhledávané části města - v docházkové vzdálenosti najdete obchody, školy, školky i další občanskou vybavenost a zároveň jste jen pár minut chůze od centra. K bytu je k dispozici také 3D virtuální prohlídka, kterou vám na vyžádání velmi rádi zašleme. Pokud vás tato nabídka zaujala, neváhejte mě kontaktovat pro více informací nebo domluvení osobní prohlídky. Budu se na vás těšit při společném setkání. Ev. číslo: 28124. Energetický štítek: G
Prodej bytu 3+1, 72 m, Havlíčkův Brod
Nabízíme Vám k prodeji byt v osobním vlastnictví 3+1, o celkové výměře 72 m. Bytová jednotka se nachází ve 4. NP čtyřpodlažního bytového domu bez…
Prodej, Byt 3+1, Dolní Město
Nabízíme prodej bytu 3+1/L/B, 82 m2 ve zvýšeném přízemí v obci Dolní Město. Byt má tři pokoje, kuchyň, šatnu, koupelnu, WC, dvě komory, předsíň,…