Makléř: Friedbergová Iveta
Telefon: 734 799 ...
E-mail: iveta.f ...
Zobrazit celý kontaktTelefon: 734 799 447
E-mail: iveta.friedbergova@century21.cz
Nemovitost nabízí
CENTURY 21 4fin Reality
Na Hřebenech II 1718/8, 140 00 Praha 4
Zobrazit kontakt na RK
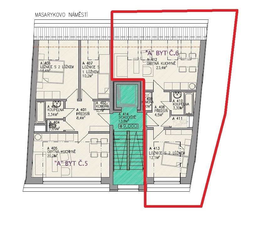
K prodeji nabízíme novostavbu bytu 2+KK, 45,5 m2, na adrese: Masarykovo nám. 47, Bystřice nad Pernštejnem. Jedná se o byt v 4 NP 3. patře s výtahem. Orientace bytu: na náměstí střešní okna SV, obývací pokoj s balkonem na JZ. K bytu je možno dokoupit parkovací místo ve vnitrobloku. Lokalita zajišťuje majitelům dokonalé soukromí přímo v centru města. Architektura s pokorou doplňuje historickou zástavbu a ctí ducha místa. Projekt je v současnosti realizován, dokončení projektu předpokládá rok 2027. Proto jsou ceny jsou zaváděcí a také financování bude z tohoto důvodu řešeno postupně. V první fázi rezervační záloha 10 % z celkové ceny bytu, po prohlášení vlastníka (rozdělení již hotové budovy na jednotlivé byty) další záloha do výše 50% celkové ceny, po kolaudaci nemovitosti se doplatí zbývající část. Tento způsob financování je velmi oblíbený, protože nabzí zájemci variabilitu a umožňuje si připravit odpovídající Cash flow s předstihem v klidu a bez rizika. Projekt je navržen tak, aby byl cenově dostupný, aniž bychom slevili z kvality provedení. Nabízíme moderní standardy bydlení, energetickou úspornost a promyšlené dispozice. Bydlet v developerském projeku: Rezidenci N°47 (pod tímto názvem najdete i internetové stránky) znamená mít obchody, služby, školy i kulturu na dosah ruky a zároveň se vracet do domu, který reprezentuje klid a pohodu. Firma Suniversal stavby, která tento projekt zaštiťuje, je mimo jiné, také zhotovitelem úžasného volnočasového projektu v Opatově (kousek za Třebíčí) apartmanyopatov. Vychází se i zde z dlouholetých zkušeností a vysokých standardů, kvality a to vše za přiznivé ceny, tak aby bydlení bylo dostupné každému. Více informací u makléře
Prodej bytu 2+kk (54,7 m2) s balkonem , Bystřice nad Pernštejnem_11
Byt ve výstavbě o dispozici 2+kk, s balkonem nacházející se ve 2. nadzemním podlaží novostavby bytového domu v Bystřici nad Pernštejnem. Byt je…
Prodej bytu 2+kk (49,6 m2) s balkonem , Bystřice nad Pernštejnem_4
Nabízím k prodeji byt ve výstavbě o dispozici 2+kk, s balkonem nacházející se v 1. nadzemním podlaží novostavby bytového domu v Bystřici nad…