Makléř: Michal Kotrba
Telefon: 800 103 ...
E-mail: zakazni ...
Zobrazit celý kontaktTelefon: 800 103 010, 800 103 010
E-mail: zakaznicky.servis@rksting.cz
Nemovitost nabízí
Realitní kancelář STING, s.r.o.
1.máje 540, 739 61 Třinec
Zobrazit kontakt na RK800 103 010
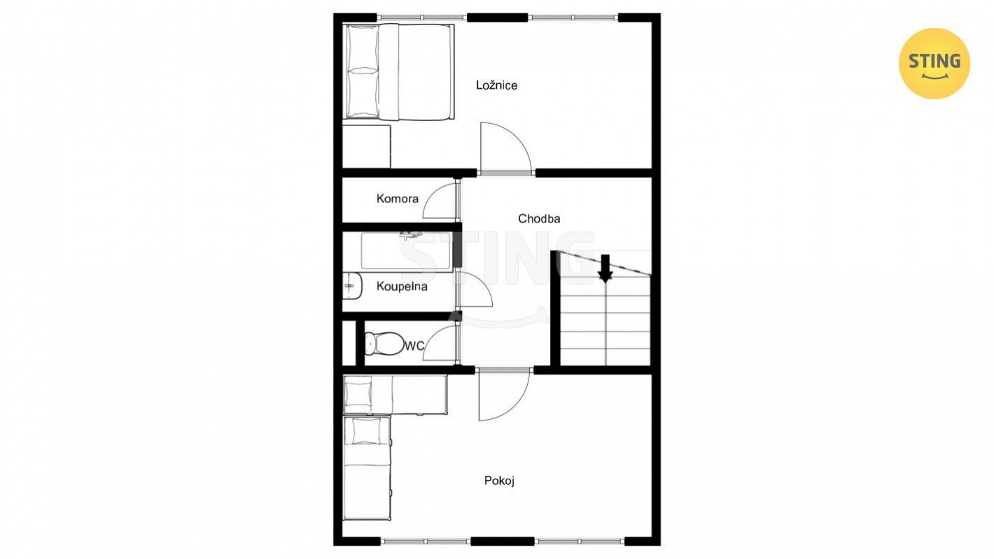
Nabízíme k prodeji prostorný mezonetový byt 3+1 o celkové výměře 91,2 m2, který se nachází na ulici Olbrachtova v Jihlavě. Byt je ideální jak pro pohodlné vlastní bydlení, tak i jako zajímavá investiční příležitost. Byt je situován ve 3. a 4. nadzemním podlaží cihlového domu na klidném sídlišti na okraji města. Dispozice bytu umožňuje i další úpravy jeden z pokojů je dostatečně velký a lze jej stavebně rozdělit na dvě samostatné místnosti, čímž může vzniknout další pokoj. V blízkém okolí je veškerá občanská vybavenost MHD, obchodní dům, nemocnice, pošta a další služby. Byt bude k dispozici od 1. 4. 2026 Těšíme se na osobní prohlídku. Do konce února 2026 nabízíme prostřednictvím našeho partnera úrokové sazby od 4,29 % p.a. Více informací Vám sdělí náš specialista na prohlídce. <a href="https://www.eurobydleni.cz/byty/3_1/sumperk/obec-sumperk/prodej/"><strong>Prodej bytu 3+1 Šumperk</strong></a>
Prodej, Byt 3+1, Jihlava
Hledáte bydlení, kde budete mít vše na dosah ruky, ale přesto se nebudete muset vzdát svého pohodlí a klidu? Nabízím k prodeji prostorný byt 3+kk …
Prodej prostorného zděného bytu 3+1 v centru Jihlavy
Nabízíme k prodeji zděný byt 3+1 o výměře 85 m, který se nachází v lokalitě nedaleko centra Jihlavy. Byt je umístěn ve 2. nadzemním podlaží menšího…
Prodej bytu 3+1 Jihlava na Eurobydleni.cz